Murray Real Estate Logo

Search Homes

59 Bridge RoadOrleans, MA 02653Price: $759,900

  • Price: $759,900
  • Est. Mortgage of $/month
  • 22 Days on Market
$
$
%
$/month over payments
Federal 30-year interest rate: 6.3% last updated on Apr 16, 2026
* All Figures are estimates. Check with your bank or proposed mortgage company for actual interest rates.
This product uses the FRED® API but is not endorsed or certified by the Federal Reserve Bank of St. Louis.
  • $759,900List Price
  • 2Bedrooms
  • 2Bathrooms
  • 1.17Acreage
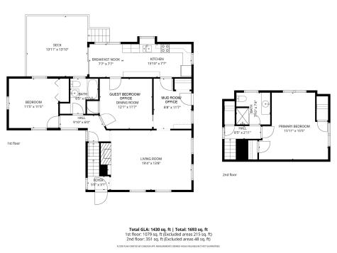
  • 1,546Square Feet
Listed by Jodi Redd of Bass River Properties

Listing Tools

Perched above the marsh along Rock Harbor Creek, this classic Cape Cod home offers sweeping marsh views and a rare opportunity in a coveted Orleans location. Set on 1.17 acres, the property features 2 bedrooms, 2 full baths, and 1,546 sq ft of living space ready for updates and personal vision. Enjoy the beauty of coastal living along scenic Bridge Road, just moments from Rock Harbor, Cape Cod Bay, Orleans shops, dining, boating, trails, and beloved bay beaches. The sale also includes 53 Dyer Prince Road in Eastham--6.66 acres of undevelopable land providing lasting privacy, a natural backdrop, and access to secluded Dyer Prince Beach through winding seagrass paths. Sold as-is, this property offers a rare opportunity to renovate or reimagine in a spectacular marshfront setting. Ideal for year-round living, a seasonal retreat, or investment.

Property Details of 59 Bridge Road

Map Location

Driving Directions

broker reciprocity The data relating to real estate for sale on this site comes from the Broker Reciprocity (BR) of the Cape Cod & Islands Multiple Listing Service, Inc. Summary or thumbnail real estate listings held by brokerage firms other than CB Murray Real Estate are marked with the BR Logo and detailed information about them includes the name of the listing broker. Neither the listing broker nor CB Murray Real Estate shall be responsible for any typographical errors, misinformation, or misprints and shall be held totally harmless.

This site was last updated April 17, 2026 7:24 AM EDT. All properties are subject to prior sale, changes, or withdrawal.

CB Murray Real Estate has chosen to display only certain towns and/or types or styles of properties. This site may not show all listings that are available through the Cape Cod & Islands Multiple Listing Service, Inc.

Hi there! How can we help you?

Contact us using the form below or give us a call.

Send Us A Message:

I agree to receive marketing and customer service calls and text messages from CB Murray Real Estate. To opt out, you can reply 'stop' at any time or click the unsubscribe link in the emails. Consent is not a condition of purchase. Msg/data rates may apply. Msg frequency varies. Privacy Policy.

Do not fill in this field:

This site is protected by reCAPTCHA and the Google Privacy Policy and Terms of Service apply.

Hi there! How can we help you?

Contact us using the form below or give us a call.

Send Us A Message:

Do not fill in this field:

This site is protected by reCAPTCHA and the Google Privacy Policy and Terms of Service apply.

Hi there! How can we help you?

Contact us using the form below or give us a call.

Send Us A Message:

Do not fill in this field:

This site is protected by reCAPTCHA and the Google Privacy Policy and Terms of Service apply.

Do not fill in this field:

This site is protected by reCAPTCHA and the Google Privacy Policy and Terms of Service apply.

Do not fill in this field:

This site is protected by reCAPTCHA and the Google Privacy Policy and Terms of Service apply.

Do not fill in this field:

This site is protected by reCAPTCHA and the Google Privacy Policy and Terms of Service apply.

$

Do not fill in this field:

This site is protected by reCAPTCHA and the Google Privacy Policy and Terms of Service apply.